Little Living hopes to expand Delaware affordable housing effort to Kent County, but outside of zoning restrictions
A $25 million project by Little Living would transform 22.5 acres of land into a solar-powered community for Kent County's working class.
Listen 1:12
A two-bedroom home from Little Living (Courtesy of George Meringolo)
What are journalists missing from the state of Delaware? What would you most like WHYY News to cover? Let us know.
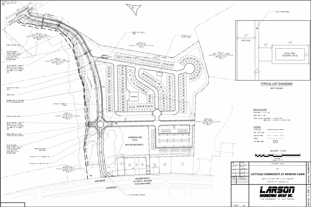
Plans to bring more affordable housing to Delaware’s Kent County are now underway through the Cottage Community at Murphy Farms. The project comes with an estimated price tag of $17 million to $25 million.
While there are still many hurdles to overcome, land now owned by the Murphy family near Frederica would be transformed into a thoughtfully designed community where affordability and sustainability meet.
The plans are an expansion of the Little Living community created in Sussex County in recent years. The opportunity emerged when Little Living’s founder and president George Meringolo learned about the property while undergoing medical treatment. Rather than simply selling it for a large profit, the Murphy family expressed a desire to invest in a community with better intentions.
The project will be right off Rt. 1, near the Delaware Turf Spots Complex that covers about 22.5 acres.

A self-sustaining community
“On that 22 and a half acres, there’ll be approximately 172 houses. There will be a number of one-bedroom, two-bedroom and three-bedroom, which will be sold,” Meringolo said. “Those selling prices will start at about $110,000 for the one bedroom, $120,000 for the two bedroom, and about $130,000 for the three bedroom. Those prices would be firmed up as we get closer to it because you don’t know what’s happening with the cost of materials and those kinds of things.”
In addition to individual homes for sale, Little Living plans around 30 townhouses for rent at about $1,200 each month with utilities included.
“This project will also include a clubhouse. It’ll include self-store sheds that people can rent if they need more room for storage. It’ll include a laundromat for people to take care of their laundry,” he said. “On the outside edge is probably going to be a convenience store with a gas station, so people can pick up day-to-day needs that they need. And there’ll also probably be something like a McDonald’s.”
“It’s really a self-contained little community. It’s going to be powered by solar panels. I think it’s a very, very nice addition to the area,” he added.
To preserve the character and upkeep of the neighborhood, homeowners will lease the land rather than own it outright, ensuring funds are available for maintenance and common area care.
“We will have enough money every month to make sure that the grass is cut, that the houses are maintained on the outside, that the roads are maintained, that it does not fall into disrepair,” he said.
Zoning could be a challenge
While the property is primarily zoned for commercial use, with a portion in agricultural conservation, development constraints remain. Sarah Keifer, director of Kent County Planning Services, noted via email that residential development is limited by the current zoning and the fact that the parcel sits outside the Growth Zone Overlay District.
She said the development restrictions go beyond zoning labels.
“The county has an overlay called a Growth Zone Overlay District. Within that overlay, the county has a 30-year-old policy of encouraging growth. And at the same time, discouraging growth outside of that overlay. And this parcel is outside of that overlay district,” Keifer said. “I’ve never seen anyone apply to change the growth zone boundary.”
While the Growth Zone Overlay could pose a challenge for a project of this scale, it’s not impossible.
Meringolo claims his concept aligns with the commercial-residential zoning classification in place.
“The property is zoned commercial-residential. We’re putting in there a convenience store, a laundromat. We’re putting in self-store units. We have rental units which are commercial and we have residential units,” he said. “That is residential commercial, we’re not looking to change the zoning.”
Meringolo said the county has other plans, but he acknowledges local expectations.
“In Kent County, they want the business on the first floor and they want tenements. And I don’t want to build tenements. I want people to have nice houses to live in,” he said. “I want kids to have playgrounds. We’re going to have playgrounds there. We’re going to have walking trails.”
Despite the complexity, Meringolo said early conversations with some local governments and backers have been promising.
“We’ve talked to a few of the Levy Court members. And I think we have some good support on the Levy Court. So once we get past zoning and planning, I don’t think we’re going to have an issue,” he said. “We’ve already got commitments from DelDOT. We’ve got commitments from a bunch of other people to throw some funds in. We’ve got a commitment from County Bank of Delaware to fund the project.”
Although formal filings have not yet been completed, Meringolo said construction is tentatively projected to begin between 2027 and 2028. He said the initiative represents more than a single development, describing it as a model that could be replicated across Delaware and potentially nationwide. He said he’s optimistic that as zoning and planning presentations advance, collaboration among local and state stakeholders will bring the Cottage Community at Murphy Farms from concept to completion.
Get daily updates from WHYY News!
WHYY is your source for fact-based, in-depth journalism and information. As a nonprofit organization, we rely on financial support from readers like you. Please give today.




